Puhelin 040 524 9330

Pentintie 1

Pentintie 1

Asunnon tiedot

Sijainti: Pentintie 1

Rakennusvuosi: 1991

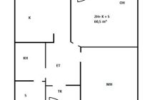
Talotyyppi: Rivitalo

Neliömäärä: 60,5 m2

Vuokra: 732,00 €kk

Huonekoko: 2H+k+s


Asunnon kuvaus

Pentintie

– Koulu 1,4 km

– Päiväkoti 450 m

– Kirjasto 3,0 km

– Terveyskeskus 1,6 km

– Kauppa 1,5 km

– Apteekki 1,5 km

– Bussipysäkki 850 m

– Kaukolämpö