Puhelin 040 524 9330

Karpalotie 13

Karpalotie 13

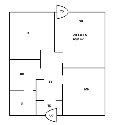
Asunnon tiedot

Sijainti: Karpalotie 13

Rakennusvuosi: 1992

Talotyyppi: Rivitalo

Neliömäärä: 60,0 m2

Vuokra: 742,92 €kk

Huonekoko: 2H+k+s


Asunnon kuvaus

Karpalotie   

– Koulu 1,6 km

– Päiväkoti 1,2 km

– Kirjasto 3,0 km

– Terveyskeskus 2,5 km          

– Kauppa 2,6 km

– Apteekki 2,6 km

– Bussipysäkki 850 m

– Kaukolämpö