Sijainti: Karpalotie 13
Rakennusvuosi: 1992
Talotyyppi: Rivitalo
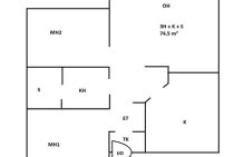
Neliömäärä: 74,5 m2
Vuokra: 894,21 €kk
Huonekoko: 3H+k+s
Karpalotie
– Koulu 1,6 km
– Päiväkoti 1,2 km
– Kirjasto 3,0 km
– Terveyskeskus 2,5 km
– Kauppa 2,6 km
– Apteekki 2,6 km
– Bussipysäkki 850 m
– Kaukolämpö